Courtesy Of Mashal Vazir Muhammad Of Exp Realty
9634 157 Street, Edmonton, AB
$2,350,000
10
Beds
11½
Baths
5,418
SqFT
2025
Year Built

About MLS® E4441779
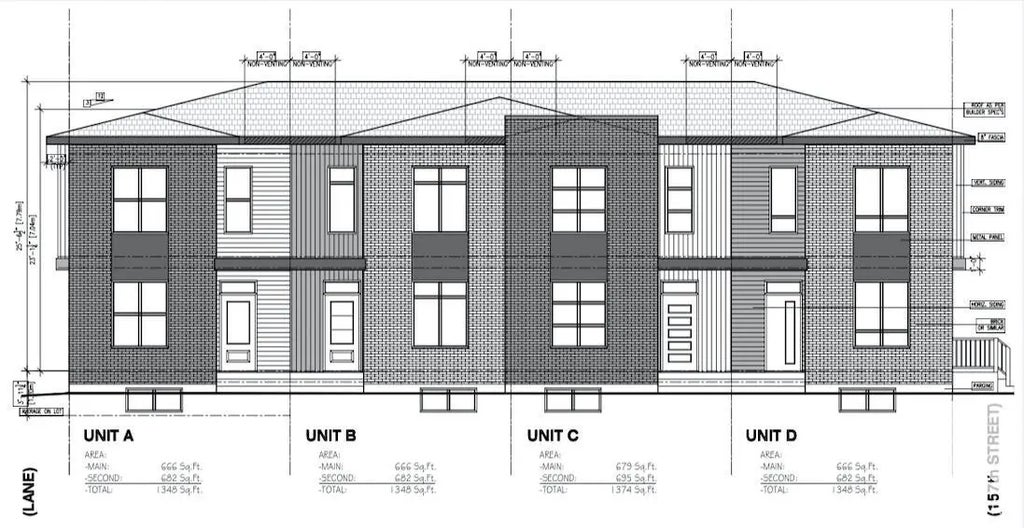
16 beds/16 baths.Don’t miss this exceptional 4-plex investment opportunity in Edmonton, meticulously crafted by experienced infill builders. Each of the four legal suites includes a spacious 3-bed, 2.5-bath main unit plus a 1-bed, 1-bath legal basement suite—totaling 16 bedrooms & 16 bathrooms across 5,400+ sqft of above-grade living space. Currently under construction with a fall/winter 2025 closing, this property qualifies for the CMHC MLI Select Program & delivers projected monthly rents of $13,600+/- (exc.utilities), capitalizing on Alberta’s booming rental market. Premium upgrades elevate every unit: floor-ceiling cabinets, s/steel appliances, quartz countertops, 9’ ceilings, & oversized windows. The versatile basement suites are perfect for long-term tenants or high-earning Airbnb stays. Located mins from future LRT, schools, West Edmonton Mall, Misericordia Hospital, & downtown, this turnkey asset combines luxury, cash flow, and convenience. Act now—this high-CAP RATE property won't last long!
Love where you Liv! Request a showing of 9634 157 Street. This Single Family home is listed at $2,350,000, with 5,418 square feet of space, was built in 2025, has 10 beds and has 12 baths.
Features of 9634 157 Street, Edmonton
MLS® # | E4441779 |
---|---|
Price | $2,350,000 |
Bedrooms | 10 |
Bedrooms Above Grade | 8 |
Bathrooms | 11.50 |
Full Baths | 11 |
Half Baths | 1 |
Square Footage | 5,418 |
Year Built | 2025 |
Type | Single Family |
Sub-Type | 4PLEX |
Style | 2 Storey |
Status | Active |
Community Information
Address | 9634 157 Street |
---|---|
Area | Edmonton |
Community | Glenwood (edmonton) |
City | Edmonton |
County | ALBERTA |
Province | AB |
Postal Code | T5P 2T2 |
Amenities of 9634 157 Street, Edmonton
Amenities | Ceiling 9 ft., Detectors Smoke, No Smoking Home, Parking-Extra |
---|---|
Parking | Quad or More Detached, Single Garage Detached |
Is Waterfront | No |
Has Pool | No |
Interior of MLS® E4441779
Interior Features | ensuite bathroom |
---|---|
Appliances | Microwave Hood Fan, Dryer-Two, Stoves-Two, Washers-Two, Dishwasher-Two |
Heating | Forced Air-1, In Floor Heat System, Natural Gas |
Fireplace | No |
Stories | 3 |
Has Basement | Yes |
Basement | Full,Fully Finished |
Separate Entrance | Yes |
Exterior of 9634 157 Street, Edmonton
Exterior | Wood, Vinyl |
---|---|
Exterior Features | Fenced, Landscaped, Playground Nearby, Schools, Shopping Nearby |
Roof | Asphalt Shingles |
Construction | Wood, Vinyl |
Foundation | Concrete Perimeter |
Additional Information of 9634 157 Street, Edmonton
Zoning | Zone 22 |
---|---|
Foreclosure | No |
RE / Bank Owned | No |
Listing Details
Office | Courtesy Of Mashal Vazir Muhammad Of Exp Realty |
---|